Bosna Hersek vize başvuru formu Bosna Hersek'e yapılacak 90 günü aşan seyahatler için yapılan vize başvurularında; pasaport, konaklama, iletişim bilgileri ve ziyaret amacı gibi bilgilerin aktarıldığı ve sunulması zorunlu olan başlıca evraklardan biridir.
Vize formunun, başvuru için en önemli evraklardan biri olduğu göz önünde bulundurularak, Bosna Hersek vize başvurusu tamamlanmalıdır.
Türkiye’de oturumu bulunan yabancı ülke vatandaşları için Vizem.net danışmanlığında yapılan Bosna Hersek vize başvurularında vize formu uzman ülke danışmanı tarafından doldurulmaktadır.
Detaylı bilgi ve başvuru: 0850 241 1868
Bosna Hersek Ulusal Vize Başvurusu için Hangi Form Doldurulmalıdır?
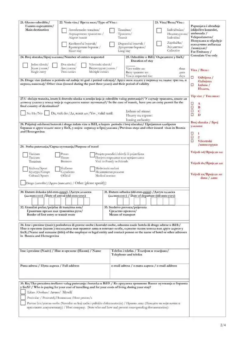
Tüm Bosna Hersek vize türleri için tek bir form kullanılmaktadır. Bosna Hersek vize başvuru formunun 22. kısmında, talep edilen vize türünün işaretlenmesi gerekmektedir.
Bosna Hersek vize başvuru formu aşağıda verilmiştir.
Bosna Hersek Vize Formu Nasıl Doldurulur?
Bosna Hersek vize başvuru formunun ilgili internet sitesinden indirilerek elde ya da bilgisayardan Türkçe ya da İngilizce olarak doldurulması gerekmektedir.
Bosna Hersek vize başvuru formunda tüm soruların eksiksiz şekilde gerçeğe uygun cevaplanması ve sadece başvuru sahibine ait bilgilerin verilmesi gerekmektedir.
El yazısı ile doldurulan Bosna Hersek vize başvuru formunun mavi tükenmez kalemle, büyük harflerle ve okunaklı bir yazı ile doldurulması; formun bilgisayardan doldurulması durumunda gerekli alanların doldurulduktan sonra çıktı alınması ve imzalanması gerekmektedir.
Bosna Hersek Vize Başvuru Formuna Hangi Bilgilerin Girilmesi Gerekir?
Bosna Hersek vize başvuru formu 48 maddeden oluşmaktadır. Bosna Hersek vize başvuru formunun 1 ile 20. maddeleri arasında başvuru sahibinin ad soyad, kimlik ve pasaport numarası, ikametgah adresi gibi kimlik ve pasaport bilgilerinin girilmesi gerekmektedir.
Bosna Hersek vize başvuru formunun 21 ile 34. maddeleri arasında vize türü, seyahat tarihleri ve konaklama bilgileri gibi vize alma sebebi ve Bosna Hersek seyahatine dair detayların; 35 ile 36. maddelerde sponsor ve ödeme bilgilerinin; 37 ile 43. maddelerde aile üyelerine ve bulunması halinde Bosna Hersek’te ikamet eden yakınlara dair bilgilerin; 44 ile 48. maddeler arasında imza ve iletişim bilgilerinin girilmesi gerekmektedir.
Bosna Hersek Vize Formu Doldurulduktan Sonra Ne Yapılmalıdır?
Bosna Hersek vize formunun doğru bilgiler ile tam ve eksiksiz olarak doldurulduktan sonra; ön sayfada ilgili yere biyometrik özellikli fotoğrafın yapıştırılması, son sayfanın başvuru sahibi tarafından ya da başvuru sahibi reşit değilse her iki ebeveyni ya da vasisi tarafından ıslak imza ile imzalanması gerekmektedir.
Bosna Hersek vize formunun doldurulmasının ardından konsolosluktan randevu alınması ve formun gerekli evraklar ile birlikte randevuda teslim edilmesi gerekmektedir.

